Çѱ¹¼¼¹«»çȸ

±ÛÁ¦¸ñ [°ßÀûÀÔÂû°ø°í] Çѱ¹¼¼¹«»çȸ°ü ´ëȸÀÇ½Ç È¸ÀÇ¿ë °¡±¸ ±³Ã¼
ÀÛ¼ºÀÏ 2022.12.15
÷ºÎÆÄÀÏ 2Ãþ ´ëȸÀÇ½Ç °¡±¸ ±³Ã¼¸¦ À§ÇÑ °ßÀûÀÔÂû°ø°í¹®.pdf


[°ø°í ¾÷¹« Á¦2022-7È£]

 

°ß Àû ÀÔ Âû °ø °í

º»È¸ ¿¹»êȸ°è±ÔÁ¤ Á¦28Á¶ÀÇ2¿¡ ÀǰŠ´ÙÀ½°ú °°ÀÌ °ø°íÇÔ

 

 

1. °ßÀûÀÔÂû¿¡ ºÙÀÌ´Â »çÇ×

°¡. ÀÔÂû°Ç¸í : Çѱ¹¼¼¹«»çȸ°ü ´ëȸÀÇ½Ç È¸ÀÇ¿ë °¡±¸ ±³Ã¼

³ª. ¼³Ä¡ÇöÀå : Çѱ¹¼¼¹«»çȸ(¼­¿ïƯº°½Ã ¼­Ãʱ¸ ¸í´Þ·Î 105) 2Ãþ ´ëȸÀǽÇ

´Ù. ÀÔÂû¹æ¹ý : °ßÀûÀÔÂû

¶ó. ÀÔÂû³»¿ë

³» ¿ë

¼³Ä¡Àå¼Ò

ºñ °í

47Àμ® ȸÀÇ¿ë Ã¥»ó ¹× ÀÇÀÚ ±³Ã¼

±âÁ¸ Ã¥»ó ¹× ÀÇÀÚ Æó±â

º»È¸ 2Ãþ ´ëȸÀǽÇ

<¸éÀû : ¾à 103.5§³(31Æò)>

 

 

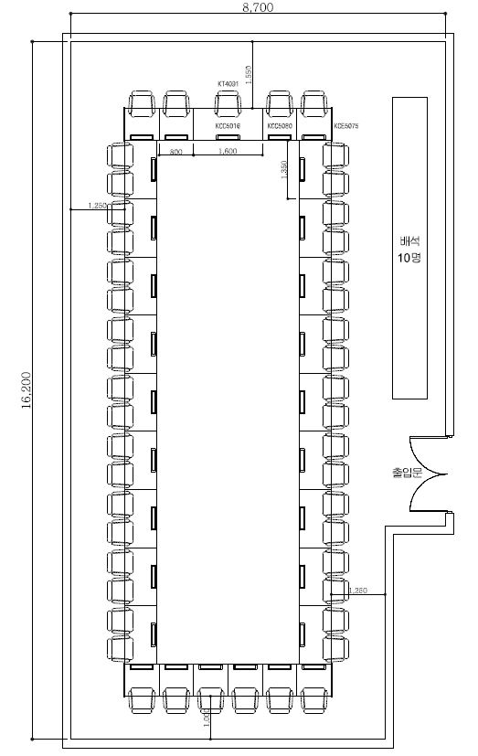
¸¶. ȸÀÇ½Ç ¹èÄ¡µµ <Âü°íÀÚ·áÀ̸ç ÇöÀå ¹æ¹®ÇÏ¿© ½ÇÃø ¹× È®ÀÎ Çʼö>

 


2. ÀÔÂû°ø°í ±â°£ : 2022. 12. 15.(¸ñ) ¡­ 2022. 12. 22.(¸ñ) 17:00 ±îÁö

3. °ßÀû¼­ Á¦Ãâ

°¡. Á¦Ãâ±â°£ : 2022. 12. 15.(¸ñ) ¡­ 2022. 12. 22.(¸ñ) 17:00 ±îÁö

³ª. Á¦Ãâó : Çѱ¹¼¼¹«»çȸ 2Ãþ ¾÷¹«Áö¿øÆÀ

4. °³ÂûÀÏÀÚ : 2022. 12. 23.(±Ý)

5. ÇöÀå¼³¸íȸ

°¡. ÀϽà : Á¢¼ö ±â°£ ³» »ó½Ã

³ª. Àå¼Ò : Çѱ¹¼¼¹«»çȸ 2Ãþ ¾÷¹«Áö¿øÆÀ

´Ù. À¯ÀÇ»çÇ× : Á¤È®ÇÑ °ßÀû »êÃâÀ» À§ÇØ ÇöÀå ¹æ¹® È®ÀÎ ÈÄ °ßÀû¼­ Á¦ÃâÇÏ¿©¾ß ÇÔ.(ÇöÀå ¹æ¹® ¾ø´Â °ßÀû¼­ ¹«È¿)

¶ó. ¹®ÀÇÀüÈ­ : 02-521-9451(Çѱ¹¼¼¹«»çȸ ¾÷¹«Áö¿øÆÀ ±èÁ¤¹Î ´ë¸®)

6. °ßÀûÀÔÂû Âü°¡ÀÚ°Ý : º»È¸¿¡¼­ ÁöÁ¤ÇÑ ÀÏÀÚ ³» ±³Ã¼¼³Ä¡ ¿Ï·á °¡´ÉÇÑ ¾÷ü

7. ÀÔÂûÂü°¡½Åû ±¸ºñ¼­·ù

°¡. °ø»ç °ßÀû¼­ °¢ 1ºÎ

³ª. »ç¾÷ÀÚ µî·ÏÁõ »çº» 1ºÎ(¹ýÀÎÀÎ °æ¿ì ¹ýÀεî±âºÎµîº»)

8. ³«Âû¾÷ü ¼±Á¤¹æ¹ý

- °ßÀû¼­¸¦ Á¦ÃâÇÑ ¾÷ü Áß º»È¸ÀÇ Á¾ÇÕÆò°¡[Á¦Ç° µðÀÚÀÎ µî ÀûÁ¤¼º Æò°¡, °¡°ÝÆò°¡ µî] °á°ú¿¡ µû¶ó °íµæÁ¡ ¼ø¼­·Î ¿ì¼±Çù»óÀÚ¸¦ ¼±Á¤

 

 

2022³â 12¿ù 15ÀÏ


ÇÑ ±¹ ¼¼ ¹« »ç ȸ Àå

 

´ëÇ¥ÀÚ : ±¸ÀçÀÌ       »ç¾÷ÀÚµî·Ï¹øÈ£ : 214-82-01415
(¿ì) 06660 ¼­¿ï½Ã ¼­Ãʱ¸ ¸í´Þ·Î 105 (*¼­ÃÊ¿ª 4¹øÃⱸ¿¡¼­ 700m)
Copyright (C) Çѱ¹¼¼¹«»çȸ All Right Reserved.